
Budynek dawnego młyna Tuligłowy
550 000,00 zł
Opis
Na sprzedaż budynek starego młyna – Małochwiej Duży, gm. Krasnystaw
Na sprzedaż unikalny budynek starego młyna z lat 50. XX wieku, położony w malowniczej miejscowości Małochwiej Duży (gm. Krasnystaw), w pobliżu drogi krajowej nr 17.
Charakterystyka budynku:
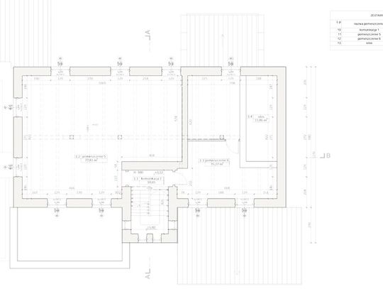
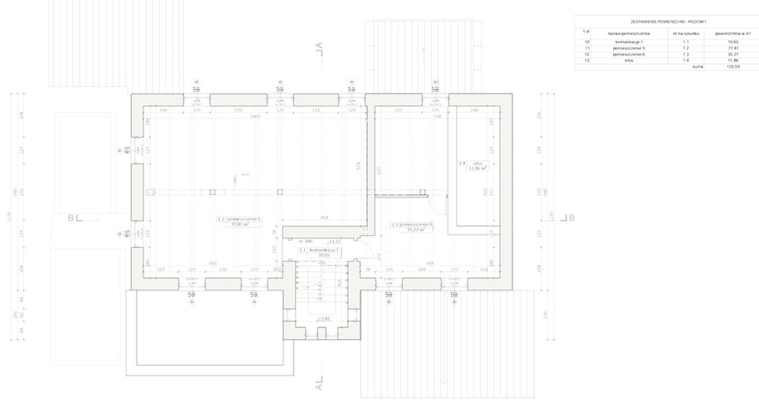
✔ Powierzchnia użytkowa: ok. 420 m² (3 poziomy po ok. 140 m² każdy)
✔ Piwnica: 148 m²
✔ Poddasze: 139 m²
✔ Solidna murowana konstrukcja z cegły
✔ Stropy drewniane
✔ Dach dwuspadowy
Lokalizacja i otoczenie:
- Położony w pięknej, spokojnej okolicy, otoczonej licznymi ciekami wodnymi, w pobliżu Zalewu w Tuligłowach oraz rzeki Wojsławka.
- Bliskość trasy DK 17 zapewnia dogodny dojazd i dobrą komunikację.
Możliwości adaptacji:
Budynek oferuje szerokie możliwości przekształcenia na różne cele, np.:
- Dom mieszkalny – unikalny loftowy styl
- Agroturystyka, pensjonat – bliskość natury i wody sprzyja turystyce
- Restauracja, kawiarnia – klimatyczne wnętrza starego młyna
- Obiekt usługowy – sala konferencyjna, galeria, atelier artystyczne
- Przestrzeń magazynowa, warsztat, pracownia rzemieślnicza
Bezpłatnie pomagamy w formalnościach związanych z uzyskaniem kredytu na zakup nieruchomości. Nasz doradca kredytowy bezpłatnie sprawdzi Twoją zdolność kredytową i przedstawi najlepsze oferty z ponad 10 banków.
Posiadasz podobną nieruchomość? Skorzystaj z bezpłatnej konsultacji – odpowiemy na pytania dotyczące ceny, procesu sprzedaży oraz możliwości poprawy atrakcyjności oferty.
Oferujemy również:
• Pośrednictwo w kupnie, sprzedaży oraz najmie nieruchomości.
• Pomoc w sprzedaży nieruchomości o skomplikowanej sytuacji prawnej.
• Rzetelne oceny wartości nieruchomości.
-Uzyskanie świadectwa energetycznego.
Nie zwlekaj, zadzwoń już teraz!
Tomasz Juszczak
Doradca ds. nieruchomości
tel. 504 288 990
e-mail: [email protected]
Północ Nieruchomości Zamość
strona internetowa:
https://polnoc.pl/oddzialy/zamosc-zeromskiego/
Niniejsze ogłoszenie nie stanowi oferty w rozumieniu Kodeksu Cywilnego, lecz ma charakter informacyjny.
Na sprzedaż unikalny budynek starego młyna z lat 50. XX wieku, położony w malowniczej miejscowości Małochwiej Duży (gm. Krasnystaw), w pobliżu drogi krajowej nr 17.
Charakterystyka budynku:
✔ Powierzchnia użytkowa: ok. 420 m² (3 poziomy po ok. 140 m² każdy)
✔ Piwnica: 148 m²
✔ Poddasze: 139 m²
✔ Solidna murowana konstrukcja z cegły
✔ Stropy drewniane
✔ Dach dwuspadowy
Lokalizacja i otoczenie:
- Położony w pięknej, spokojnej okolicy, otoczonej licznymi ciekami wodnymi, w pobliżu Zalewu w Tuligłowach oraz rzeki Wojsławka.
- Bliskość trasy DK 17 zapewnia dogodny dojazd i dobrą komunikację.
Możliwości adaptacji:
Budynek oferuje szerokie możliwości przekształcenia na różne cele, np.:
- Dom mieszkalny – unikalny loftowy styl
- Agroturystyka, pensjonat – bliskość natury i wody sprzyja turystyce
- Restauracja, kawiarnia – klimatyczne wnętrza starego młyna
- Obiekt usługowy – sala konferencyjna, galeria, atelier artystyczne
- Przestrzeń magazynowa, warsztat, pracownia rzemieślnicza
Bezpłatnie pomagamy w formalnościach związanych z uzyskaniem kredytu na zakup nieruchomości. Nasz doradca kredytowy bezpłatnie sprawdzi Twoją zdolność kredytową i przedstawi najlepsze oferty z ponad 10 banków.
Posiadasz podobną nieruchomość? Skorzystaj z bezpłatnej konsultacji – odpowiemy na pytania dotyczące ceny, procesu sprzedaży oraz możliwości poprawy atrakcyjności oferty.
Oferujemy również:
• Pośrednictwo w kupnie, sprzedaży oraz najmie nieruchomości.
• Pomoc w sprzedaży nieruchomości o skomplikowanej sytuacji prawnej.
• Rzetelne oceny wartości nieruchomości.
-Uzyskanie świadectwa energetycznego.
Nie zwlekaj, zadzwoń już teraz!
Tomasz Juszczak
Doradca ds. nieruchomości
tel. 504 288 990
e-mail: [email protected]
Północ Nieruchomości Zamość
strona internetowa:
https://polnoc.pl/oddzialy/zamosc-zeromskiego/
Niniejsze ogłoszenie nie stanowi oferty w rozumieniu Kodeksu Cywilnego, lecz ma charakter informacyjny.
Kategoria
Reklama
















