
Nowa Inwestycja. Nowoczesny dom z garażem!
565 000,00 zł
Opis
Zapraszamy do zapoznania się z ofertą sprzedaży 6 nowych domów w zabudowie bliźniaczej. 6 mieszkań w stanie deweloperskim o powierzchni 111 m2 z garażami i ogrodami - idealnych dla rodzin lub osób poszukujących komfortowej przestrzeni w spokojnej okolicy!
Inwestycja znajduje się w Hrubieszowie w dzielnicy Lipice, pomiędzy ulicami Świerkową oraz Lipową, w sąsiedztwie niskiej zabudowy jednorodzinnej oraz miejskiej przestrzeni rekreacyjnej.
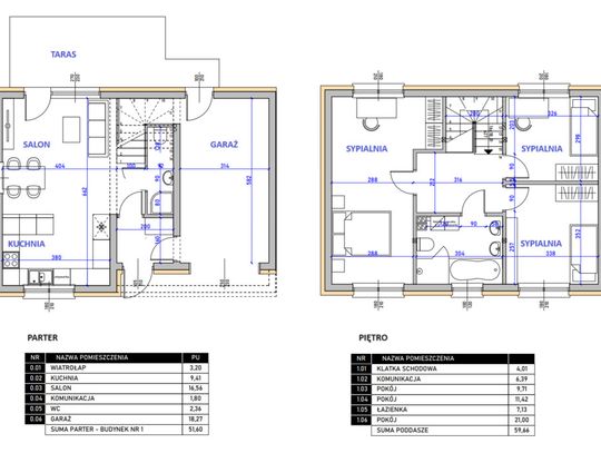
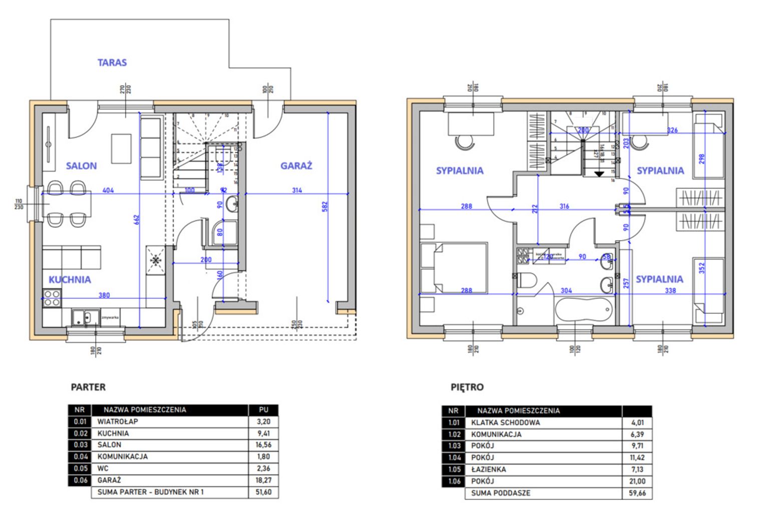
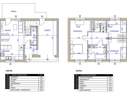
Powierzchnia: 111m²
- 51,6m2 parter + 59,6m2 piętro
Parter: garaż, salon z kuchnią, wc, korytarz i klatka schodowa.
Piętro: 3 sypialnie i rodzinna łazienka.
Powierzchnia działki:
Budynek 1 - 409 m2 (REZERWACJA)
Budynek 2 - 350 m2
Budynek 3 - 352 m2
Budynek 4 - 427 m2 (SPRZEDANY)
Budynek 5 - 429 m2 (SPRZEDANY)
Budynek 6 - 416 m2 (SPRZEDANY)
Do budynków prowadzi wygodna, utwardzona droga wewnętrzna.
Liczba Pokoi: 4
Łazienka: 2
Kuchnia: otwarta na salon
Ogród: idealny na letnie spotkania rodzinne i relaks na świeżym powietrzu z widokiem na zieleń. Spory metraż umożliwia urządzenie ogródka, rabat czy przestrzeni do zabaw dla dzieci.
Garaż: Jednostanowiskowy w bryle budynku. Nowoczesna brama. Znajdziemy w nim również wydzieloną część techniczną z uzdatniaczem wody oraz piecem gazowym.
Miejsce Parkingowe: Dedykowane miejsce parkingowe przed budynkiem.
Udogodnienia:
· Mieszkania bezczynszowe
· Nowoczesny piec gazowy z 1 zasobnikiem, zewnętrznym czujnikiem pogodowym i sterownikiem
· Ogrzewanie podłogowe na parterze. Grzejniki na piętrze
· Wentylacja w każdym pomieszczeniu
· Zamknięte osiedle
· Planowany domofon/wideofon na wjeździe/wejściu na posesję (instalacje gotowe do podłączenia)
· Miejsce postojowe
· Instalacja przystosowana w razie potrzeby pod fotowoltaikę i pompę ciepła
· Udział wszystkich mieszkańców w drodze dojazdowej na posesji
· Wszystkie posesje są ogrodzone
· Spokojna okolica.
Cechy Mieszkania:
* Funkcjonalny układ pomieszczeń zapewniający wygodę i komfort dla całej rodziny.
* Duże okna w nowoczesnym stylu doskonale doświetlają wszystkie pokoje.
* Na ścianach wewnętrznych gotowe tynki.
* Część dzienna z bezpośrednim wyjściem przez przeszklone drzwi typu HS na taras.
* Przestronne i jasne wnętrza w stanie deweloperskim umożliwiają zaprojektowanie przestrzeni w indywidualnym stylu.
* Dogodna lokalizacja zapewniająca łatwy dostęp do sklepów, szkół, przedszkoli oraz terenów rekreacyjnych i usług.
* Spokojne sąsiedztwo, idealne dla osób ceniących sobie ciszę i bezpieczeństwo.
* Otoczenie to otwarta przestrzeń i zabudowania jednorodzinne. Do działki przylega również teren miejski - zadbana przestrzeń rekreacyjna z terenem spacerowym, boiskiem i placem zabaw.
Media:
- kanalizacja
- wodociąg
- gaz ziemny
- energia elektryczna
- światłowód
Cena: 565 000zł
Chcesz zobaczyć nieruchomość już teraz? Zadzwoń lub napisz do mnie, a udostępnię Ci link do wirtualnego spaceru!
Skontaktuj się ze mną, aby umówić się na prezentację lub uzyskać więcej informacji.
Serdecznie zapraszam!
Pomagamy w formalnościach związanych z uzyskaniem kredytu na zakup nieruchomości.
Nasz doradca kredytowy bezpłatnie pomoże Ci sprawdzić zdolność kredytową i przedstawi najkorzystniejszą ofertę z ponad 10 banków!
Posiadasz podobną nieruchomość? Zadzwoń i skorzystaj z bezpłatnej konsultacji, gdzie odpowiem na pytania dotyczące Twojej nieruchomości, jej ceny oraz procesu sprzedaży.
Nie zwlekaj, zadzwoń już teraz!
Justyna Łagoda
Tel. 665 750 080
Północ nieruchomości Zamość
ul. Żeromskiego 3
22- 400 Zamość
Inwestycja znajduje się w Hrubieszowie w dzielnicy Lipice, pomiędzy ulicami Świerkową oraz Lipową, w sąsiedztwie niskiej zabudowy jednorodzinnej oraz miejskiej przestrzeni rekreacyjnej.
Powierzchnia: 111m²
- 51,6m2 parter + 59,6m2 piętro
Parter: garaż, salon z kuchnią, wc, korytarz i klatka schodowa.
Piętro: 3 sypialnie i rodzinna łazienka.
Powierzchnia działki:
Budynek 1 - 409 m2 (REZERWACJA)
Budynek 2 - 350 m2
Budynek 3 - 352 m2
Budynek 4 - 427 m2 (SPRZEDANY)
Budynek 5 - 429 m2 (SPRZEDANY)
Budynek 6 - 416 m2 (SPRZEDANY)
Do budynków prowadzi wygodna, utwardzona droga wewnętrzna.
Liczba Pokoi: 4
Łazienka: 2
Kuchnia: otwarta na salon
Ogród: idealny na letnie spotkania rodzinne i relaks na świeżym powietrzu z widokiem na zieleń. Spory metraż umożliwia urządzenie ogródka, rabat czy przestrzeni do zabaw dla dzieci.
Garaż: Jednostanowiskowy w bryle budynku. Nowoczesna brama. Znajdziemy w nim również wydzieloną część techniczną z uzdatniaczem wody oraz piecem gazowym.
Miejsce Parkingowe: Dedykowane miejsce parkingowe przed budynkiem.
Udogodnienia:
· Mieszkania bezczynszowe
· Nowoczesny piec gazowy z 1 zasobnikiem, zewnętrznym czujnikiem pogodowym i sterownikiem
· Ogrzewanie podłogowe na parterze. Grzejniki na piętrze
· Wentylacja w każdym pomieszczeniu
· Zamknięte osiedle
· Planowany domofon/wideofon na wjeździe/wejściu na posesję (instalacje gotowe do podłączenia)
· Miejsce postojowe
· Instalacja przystosowana w razie potrzeby pod fotowoltaikę i pompę ciepła
· Udział wszystkich mieszkańców w drodze dojazdowej na posesji
· Wszystkie posesje są ogrodzone
· Spokojna okolica.
Cechy Mieszkania:
* Funkcjonalny układ pomieszczeń zapewniający wygodę i komfort dla całej rodziny.
* Duże okna w nowoczesnym stylu doskonale doświetlają wszystkie pokoje.
* Na ścianach wewnętrznych gotowe tynki.
* Część dzienna z bezpośrednim wyjściem przez przeszklone drzwi typu HS na taras.
* Przestronne i jasne wnętrza w stanie deweloperskim umożliwiają zaprojektowanie przestrzeni w indywidualnym stylu.
* Dogodna lokalizacja zapewniająca łatwy dostęp do sklepów, szkół, przedszkoli oraz terenów rekreacyjnych i usług.
* Spokojne sąsiedztwo, idealne dla osób ceniących sobie ciszę i bezpieczeństwo.
* Otoczenie to otwarta przestrzeń i zabudowania jednorodzinne. Do działki przylega również teren miejski - zadbana przestrzeń rekreacyjna z terenem spacerowym, boiskiem i placem zabaw.
Media:
- kanalizacja
- wodociąg
- gaz ziemny
- energia elektryczna
- światłowód
Cena: 565 000zł
Chcesz zobaczyć nieruchomość już teraz? Zadzwoń lub napisz do mnie, a udostępnię Ci link do wirtualnego spaceru!
Skontaktuj się ze mną, aby umówić się na prezentację lub uzyskać więcej informacji.
Serdecznie zapraszam!
Pomagamy w formalnościach związanych z uzyskaniem kredytu na zakup nieruchomości.
Nasz doradca kredytowy bezpłatnie pomoże Ci sprawdzić zdolność kredytową i przedstawi najkorzystniejszą ofertę z ponad 10 banków!
Posiadasz podobną nieruchomość? Zadzwoń i skorzystaj z bezpłatnej konsultacji, gdzie odpowiem na pytania dotyczące Twojej nieruchomości, jej ceny oraz procesu sprzedaży.
Nie zwlekaj, zadzwoń już teraz!
Justyna Łagoda
Tel. 665 750 080
Północ nieruchomości Zamość
ul. Żeromskiego 3
22- 400 Zamość
Kategoria
Reklama





















