
Dom z dużym budynkiem gospodarczym w Łabuniach
900 000,00 zł
Opis
Na sprzedaż nieruchomość położona w miejscowości Łabunie, bezpośrednio przy drodze krajowej nr 17.
Działka o powierzchni 58 arów, na której znajduje się dom mieszkalny oraz duża hala murowana.
Szczegóły nieruchomości:
Lokalizacja: Łabunie, przy drodze krajowej nr 17
Powierzchnia działki: 58 arów
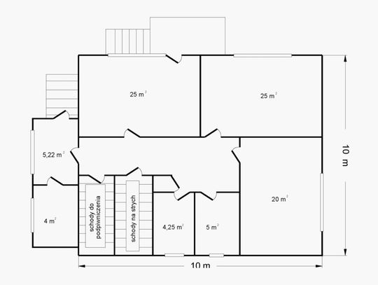
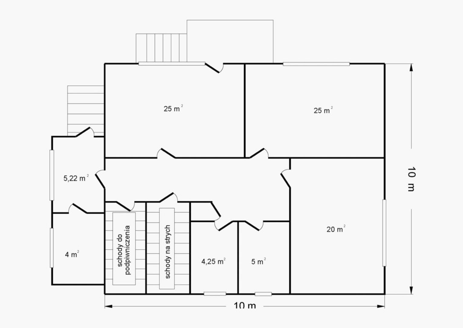
Dom mieszkalny: około 100 m²
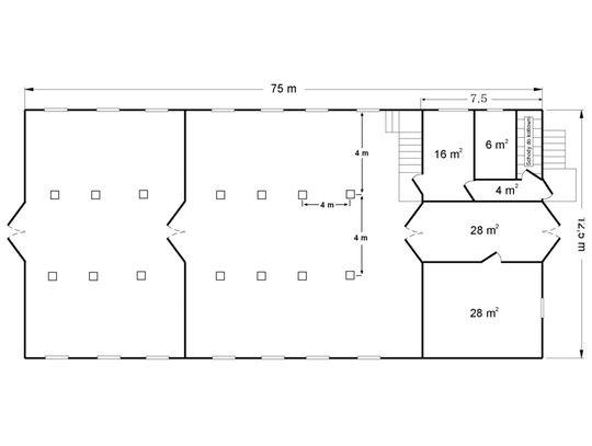
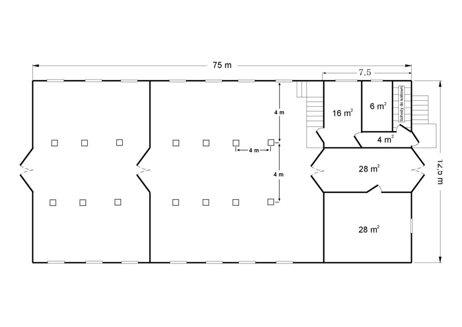
Hala murowana: 936 m²
Hala była wcześniej wykorzystywana jako kurnik, jednak posiada ogromne możliwości adaptacyjne, co czyni ją idealną do różnych zastosowań komercyjnych, przemysłowych lub związanych z rolnictwem.
Możliwość dojazdu z dwóch stron budynku. Budynek wyposażony jest we wszystkie media, hala podzielona jest na 3 części. Znajdziemy tam również przestrzeń na część socjalną, magazyn oraz kotłownię w podpiwniczeniu. Dojazd do budynku jest utwardzony pod ciężki transport. Idealnie nadaje się pod magazyn.
Zalety nieruchomości:
Doskonała lokalizacja przy głównej drodze krajowej
Duża powierzchnia działki
Możliwość adaptacji hali do różnych celów
Spokojna okolica
Istnieje możliwość zakupu hali oddzielnie. Zapytaj o szczegóły !
Pomagamy w formalnościach związanych z uzyskaniem kredytu na zakup nieruchomości.
Nasz doradca kredytowy bezpłatnie pomoże Ci sprawdzić zdolność kredytową i przedstawi najkorzystniejszą ofertę z ponad 10 banków!
Posiadasz podobną nieruchomość? Zadzwoń i skorzystaj z bezpłatnej konsultacji, gdzie odpowiem na pytania dotyczące Twojej nieruchomości, jej ceny oraz procesu sprzedaży.
Nie zwlekaj, zadzwoń już teraz!
Tomasz Juszczak
Doradca ds. nieruchomości
tel. 504 288 990
e-mail: [email protected]
Północ Nieruchomości Zamość
strona internetowa:
https://polnoc.pl/oddzialy/zamosc-zeromskiego/
Niniejsze ogłoszenie nie stanowi oferty w rozumieniu Kodeksu Cywilnego, lecz ma charakter informacyjny.
Działka o powierzchni 58 arów, na której znajduje się dom mieszkalny oraz duża hala murowana.
Szczegóły nieruchomości:
Lokalizacja: Łabunie, przy drodze krajowej nr 17
Powierzchnia działki: 58 arów
Dom mieszkalny: około 100 m²
Hala murowana: 936 m²
Hala była wcześniej wykorzystywana jako kurnik, jednak posiada ogromne możliwości adaptacyjne, co czyni ją idealną do różnych zastosowań komercyjnych, przemysłowych lub związanych z rolnictwem.
Możliwość dojazdu z dwóch stron budynku. Budynek wyposażony jest we wszystkie media, hala podzielona jest na 3 części. Znajdziemy tam również przestrzeń na część socjalną, magazyn oraz kotłownię w podpiwniczeniu. Dojazd do budynku jest utwardzony pod ciężki transport. Idealnie nadaje się pod magazyn.
Zalety nieruchomości:
Doskonała lokalizacja przy głównej drodze krajowej
Duża powierzchnia działki
Możliwość adaptacji hali do różnych celów
Spokojna okolica
Istnieje możliwość zakupu hali oddzielnie. Zapytaj o szczegóły !
Pomagamy w formalnościach związanych z uzyskaniem kredytu na zakup nieruchomości.
Nasz doradca kredytowy bezpłatnie pomoże Ci sprawdzić zdolność kredytową i przedstawi najkorzystniejszą ofertę z ponad 10 banków!
Posiadasz podobną nieruchomość? Zadzwoń i skorzystaj z bezpłatnej konsultacji, gdzie odpowiem na pytania dotyczące Twojej nieruchomości, jej ceny oraz procesu sprzedaży.
Nie zwlekaj, zadzwoń już teraz!
Tomasz Juszczak
Doradca ds. nieruchomości
tel. 504 288 990
e-mail: [email protected]
Północ Nieruchomości Zamość
strona internetowa:
https://polnoc.pl/oddzialy/zamosc-zeromskiego/
Niniejsze ogłoszenie nie stanowi oferty w rozumieniu Kodeksu Cywilnego, lecz ma charakter informacyjny.
Kategoria
Reklama



















